Julphar Towers
Julphar Towers, a 43-storey mixed-use development in Al Nakheel, Ras Al Khaimah, offers 349 residential units and 468 office spaces, including studios and 1-4 bedroom apartments with modern features.
Starting From
AED 600,000
Handover
Q1 2024
Developer
RAK Properties
Julphar Towers - Al Hisn Road - Ras Al Khaimah - United Arab Emirates
About Project
Julphar Towers is a landmark 43-storey mixed-use development located in the vibrant Al Nakheel area of Ras Al Khaimah. Comprising two twin towers, the complex offers a total of 349 residential units and 468 office spaces, making it a prime destination for both commercial and residential purposes. Developed by RAK Properties, Julphar Towers is a versatile and dynamic development catering to a range of needs. The residential side of the development features an assortment of studios and one to four-bedroom apartments, designed with modern living in mind. Each studio unit includes fitted wardrobes, a lounge, an open kitchen, a balcony, and a modern bathroom. The apartments, which range from one to four bedrooms, come with spacious living rooms, large balconies, laundry rooms, dining areas, and ensuite bathrooms. For those seeking more space, the three- and four-bedroom apartments also feature staff accommodations and storage rooms.
Reference Number
RIPI_RAK_7
Permit Number
Developer
RAK Properties
Amenities

Swimming Pool
.png&w=3840&q=75)
Covered Parking
.png&w=3840&q=75)
Gymnasium
.png&w=3840&q=75)
24/7 Maintenance
.png&w=3840&q=75)
Children's Play Area
-1.png&w=3840&q=75)
Fitness Center

Restaurants

Shops
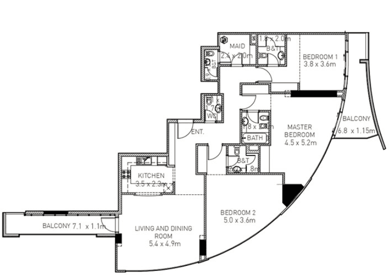
Property Type

Apartment
3
1915 sq ft
Starting Price
AED 2,134,500
More Projects By Developer
We are here to assist you with everything related to property services in a more professional and detailed manner.
PREV
NEXT

























































