Azizi Tulip Residences
Azizi Tulip is an 11-storey residential complex in Al Furjan, Dubai, offering fully furnished one to three-bedroom apartments. Completed in 2017, the development includes a swimming pool, gym, spa, BBQ area, and children’s facilities. Located near Jumeirah Village Triangle and Sheikh Mohammed bin Zayed Road, it provides a well-connected lifestyle with modern amenities.
Starting From
1,090,000 د.إ.
Handover
Q3 2017
Developer
Azizi Developments
Azizi Tulip Residence - Dubai - United Arab Emirates
About Project
Azizi Tulip is an 11-storey residential complex developed by Azizi Developments, situated in the thriving Al Furjan community, close to Jumeirah Village Triangle, Sheikh Mohammed bin Zayed Road, and Ibn Battuta Mall. Completed in 2017, the project offers 99 fully furnished units, including one to three-bedroom apartments. These residences feature minimalist design elements, balconies or terraces with views of the swimming pool and garden, and fully fitted kitchens. Larger apartments come with additional amenities like spacious living and dining areas, as well as maid’s rooms. Each unit is allocated parking space based on its size, providing residents with convenience and functionality. Residents of Azizi Tulip have access to a variety of premium amenities, including a large swimming pool, spa, steam and sauna rooms, a modern gym, a children’s playground and pool, landscaped gardens, and BBQ areas. The development is equipped with 24/7 security, concierge services, high-speed elevators, CCTV surveillance, and air conditioning and fire safety systems, ensuring a comfortable and secure living experience.
Reference Number
RIPI_AZI_34
Permit Number
Developer
Azizi Developments
Amenities

Security

Swimming Pool
.png&w=3840&q=75)
Covered Parking
.png&w=3840&q=75)
Gymnasium
.png&w=3840&q=75)
24/7 Maintenance
.png&w=3840&q=75)
Children's Play Area

Restaurants

Shops
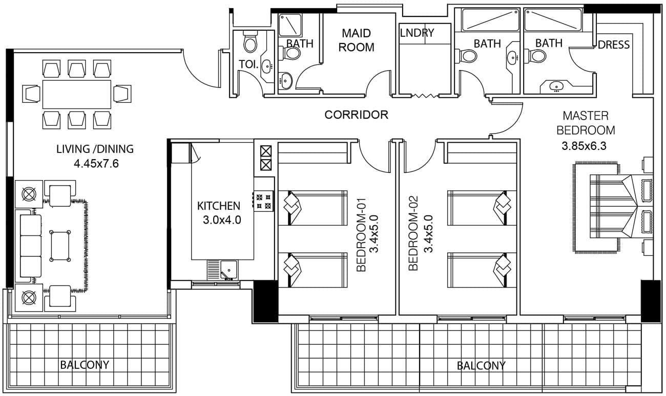
Property Type
.jpg&w=3840&q=75)
Apartment
3
1762 sq ft
Starting Price
1,890,000 د.إ.
More Projects By Developer
We are here to assist you with everything related to property services in a more professional and detailed manner.
PREV
NEXT



.jpg&w=3840&q=75)

.jpg&w=3840&q=75)




















-1.jpg&w=3840&q=75)




.jpg&w=3840&q=75)















.jpg&w=3840&q=75)
.jpg&w=3840&q=75)
